Местоположение
Площадь участка
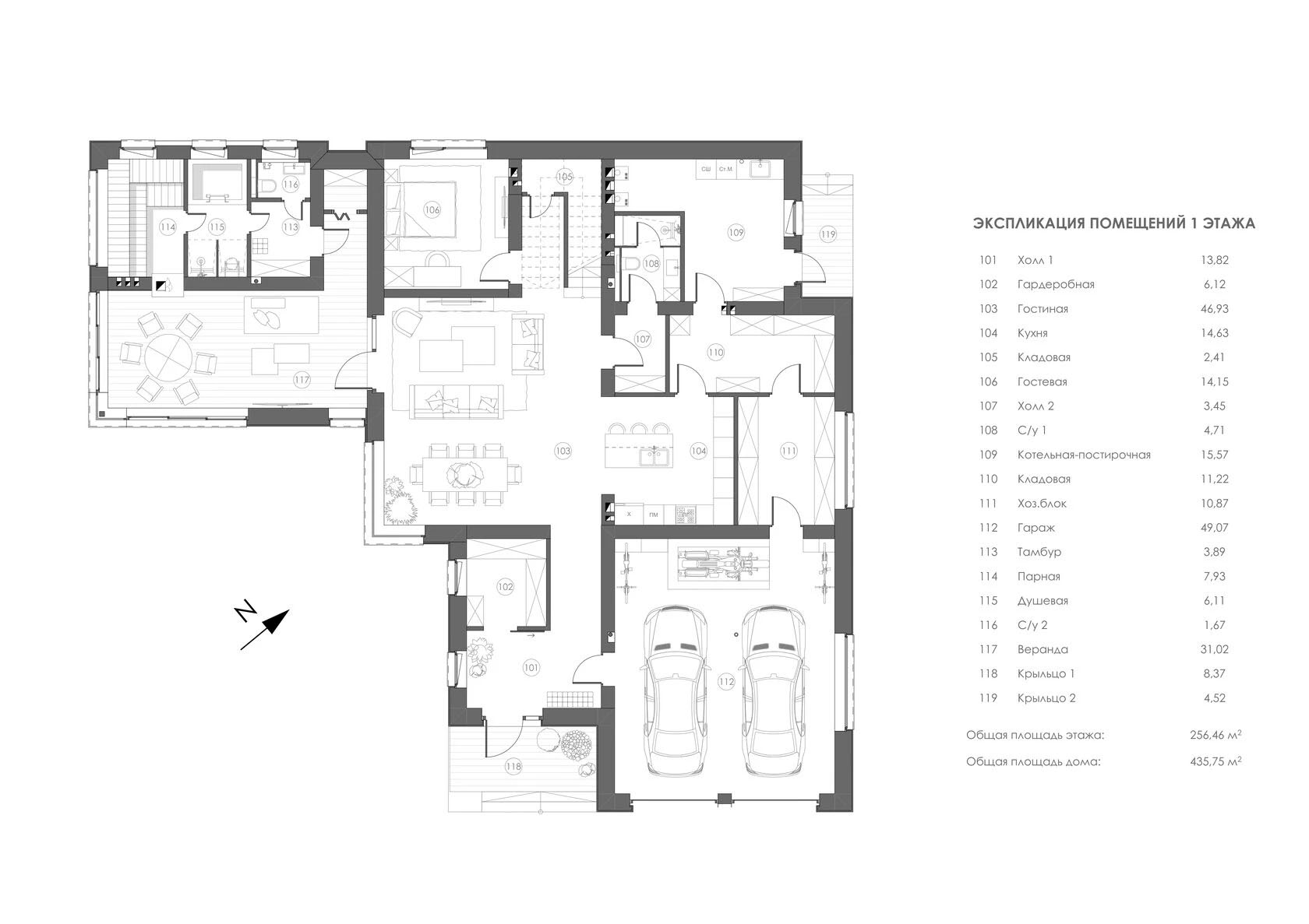
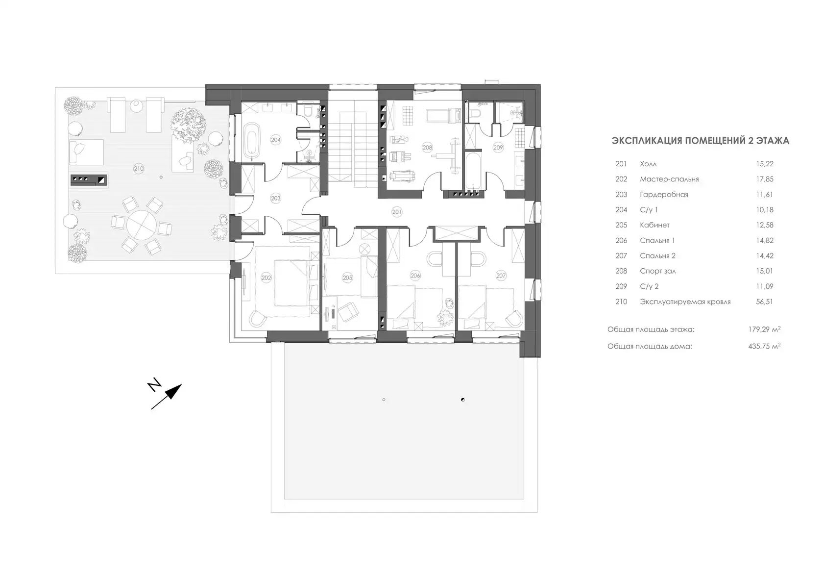
Площадь дома
Состав работ
визуализации
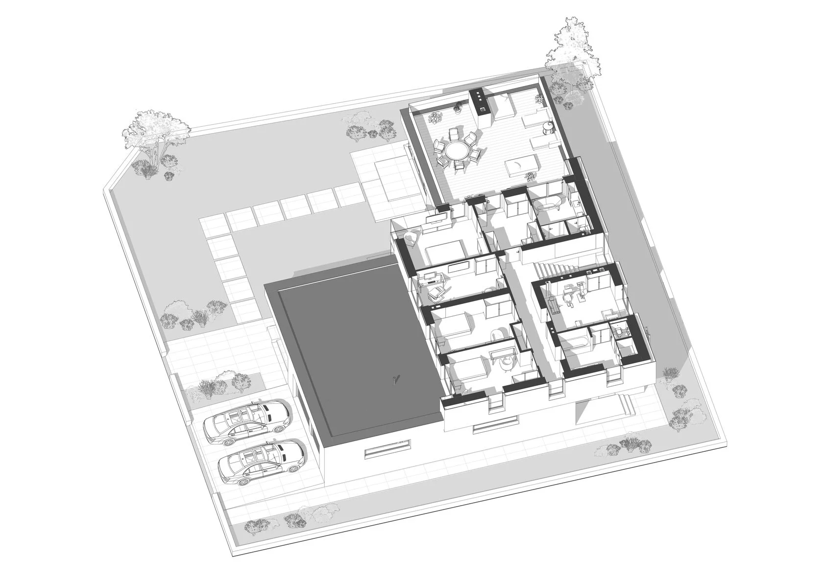
Дом с внутренним двором на угловом участке
Цель
Задачи
● Компактно разместить на участке все функциональные зоны: жилые помещения, гараж, банный блок.
● Применить ступенчатую структуру и светлые материалы для визуального облегчения объема.
● Ориентировать панорамное остекление основных помещений во внутреннее пространство.
● Четко разделить зоны, предусмотреть банный комплекс, гараж и выход на эксплуатируемую кровлю.



Решения
-
Расположили дом так, чтобы он раскрывался внутрь участка — под углом 90 градусов. Это позволило сформировать внутренний двор, закрытый от соседей стенами самого дома, а со стороны дороги — невысокой живой изгородью.
-
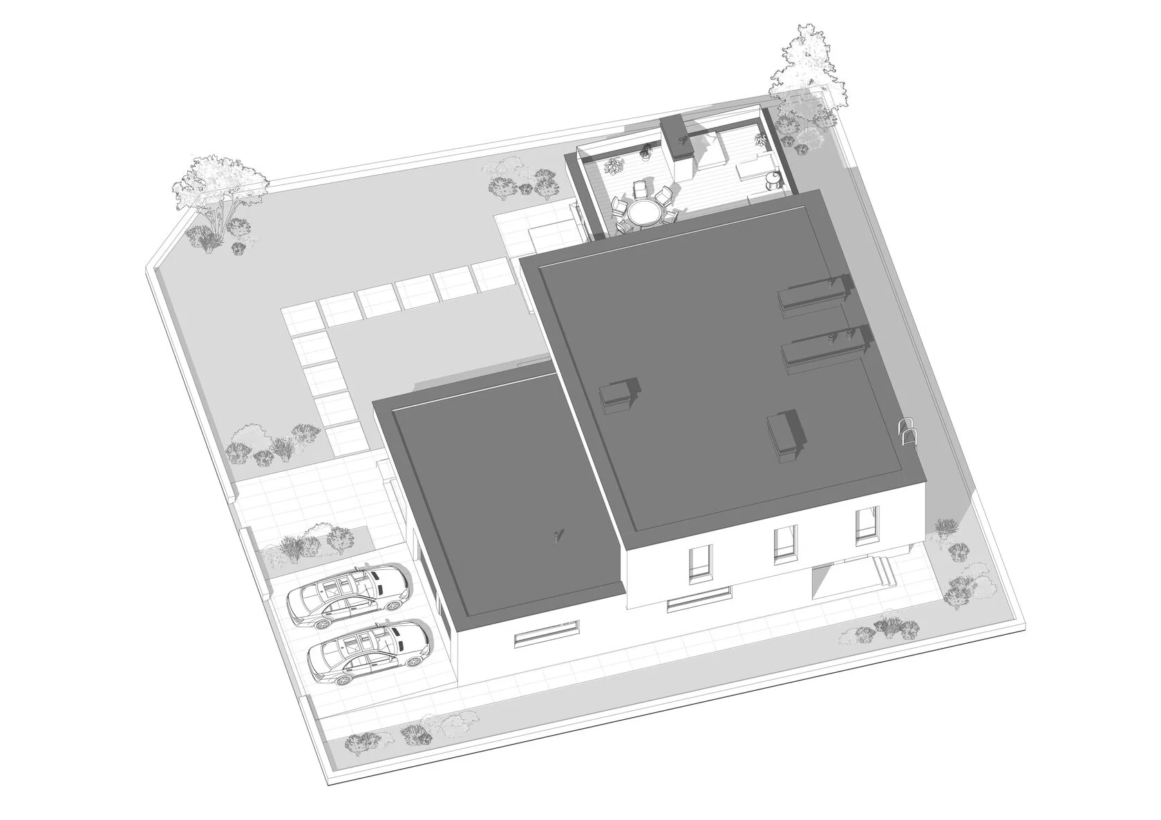
Учли градостроительные ограничения. Чтобы сохранить ощущение воздуха и избежать визуальной тяжести, мы разместили самый высокий, двухэтажный объем в дальнем углу участка. Так появилась ступенчатая структура.
-
Направили панорамные окна во внутренний двор и применили структурное остекление зоны гостиной и мастер-спальни.
-
Из архитектурных стилей выбрали современный минимализм. Первый этаж облицевали светлым широкоформатным керамогранитом. Для отделки оконных проёмов второго этажа выбрали стемалит, который визуально облегчает объем и «растворяет» его в пространстве.
-
Учли сценарии загородной жизни. Предусмотрели крытый гараж, банный блок с верандой и выход на эксплуатируемую кровлю. Второй этаж отвели под спальни и детскую.



Результат
Отзыв клиента
Боялась, что на маленьком участке получится тесно и неудобно. А вышло наоборот — двор стал нашей главной комнатой, дом светлым, а уединение — полным. Спасибо, что услышали самое важное и сделали место, где по-настоящему хорошо.











